来源:艾特贸易2017-08-25
简介电气图纸上,照明回路穿线要比插座回路难的多。插座回路通常穿三条线,分别是:火线、零线、地线,线路从电箱出来,连接每个插座点的根数都是一样的!照明回路与插座回路有很
电气图纸上,照明回路穿线要比插座回路难的多。插座回路通常穿三条线,分别是:火线、零线、地线,线路从电箱出来,连接每个插座点的根数都是一样的!照明回路与插座回路有很大的区别,它需要根据开关的种类、灯具数量、灯具控制方式来确定电线根数!
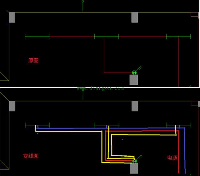
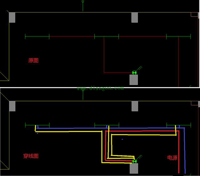
穿线前,首先确定电源根数及大小。在平面图上,用户电箱的电箱编号是(AL1),在系统图上找到与(AL1)相对应的电箱系统图!图纸中,照明的电源导线根数是BV 2X2.5。
系统图中,如果单相设计的导线为两根线,那就只有火线和零线,没有地线!设计导线是三根线,那就需要加入地线,火线、零线、地线!灯具的安装高度通常在2.5米以上或吸顶安装,而开关则大多数是塑料外壳,照明回路触电的可能性非常小,所以很多设计没有地线都是正常的!
穿线时,颜色要区分好,火线红色,零线蓝色,地线黄绿双色,照明控制线可选择黄色、白色、或者黑色线!这篇文章主要是教大家照明穿线,控制线我用黄色线代替,出线多位开关时,控制线要严格区分的,则可以加入其他颜色的导线进线区分,但是红色,蓝色,黄绿双色这三种线不要混了!


上面两张图中,第一张是原图纸,第二张是我画的穿线图!照明回路,火线只进开关(红线),再从开关出一条控制线(黄线)接入灯具,火线经过灯具线盒时,不用留线头接灯具 !零线不需要进开关,直接接入灯具内,如果零线有其他灯具,只需要再分一条零线出来接上即可!
再来举例一个三控开关,电源从左下角上来,火线直接进开关!再从开关出三条控制线,分别接入三盏灯具内!而零线也是直接接入灯具内,不需要进入开关!

照明线路中,双控开关的穿线一直有很多人不会做!上面两张图,第一张是原图,第二张是穿线图。红色代表火线,蓝色代表零线,黄色代表控制线,白色代表串联线!


电源从大厅进入房间,红色线经过灯具时不需要留线头,直接进入双控开关的其中一个!蓝色线同样也是直接接入灯具,不需要进入开关!双联开关有一个开关进入火线后,另一个开关则需要出来一条控制线!白色的两条线则是两个开关之间的串联线,经过灯具时,也不需要留线头!这就是单联双控的穿线图,下面我附一张单联双控接线图!






在一组单联双控开关里,其中一个开关(L接口)进火线,另一个开关(L接口)出控制线!同一个开关的L1与L2,与另一个开关的L1与L2可任意串联!
室内风扇电机和霍尔元件的检测